Municipio y Nación apuran la documentación del convenio para la obra de los consultorios externos
Avanzan las correcciones técnicas del proyecto, con miras a acelerar la firma del convenio que permitirá iniciar la construcción de la segunda planta de los consultorios descentralizados. “Es una obra que para el Presupuesto municipal era muy difícil de encarar”, señaló la subsecretaria de Obras Públicas María Riestra y destacó la celeridad de las gestiones que facilitó el tandilense Martín Yañez.
:format(webp):quality(40)/https://cdn.eleco.com.ar/media/2020/03/e31e03ac-corona-virus-consultorios-externos-25-03-20-4.jpg)
Personal de la Secretaría de Obras Públicas del Municipio trabaja “a contrarreloj”, junto a funcionarios del Ministerio de Obras Públicas de Nación, de cara a la firma del convenio para la construcción de la segunda etapa de los consultorios externos del Sistema Integrado de Salud Pública (SISP). Tal como anticipó este Diario, el proyecto fue incorporado al Plan de Infraestructura Sanitaria, a partir de las gestiones del tandilense Martín Yañez -jefe de asesores de Jefatura de Gabinete a cargo de Juan Manzur-, con un financiamiento que rondará los 100 millones de pesos.
Recibí las noticias en tu email
Accedé a las últimas noticias desde tu email“Tenemos que ser muy cautos con las expectativas hasta que se firme el convenio porque hay todo un proceso de análisis y de idas y vueltas desde los aspectos técnicos, pero estamos incluidos en un programa que se llama Plan de Infraestructura Sanitaria. A través de funcionarios de Nación, nos pidieron el proyecto y empezamos ya con la corrección técnica para poder hacer la firma del convenio”, confirmó la subsecretaria de Obras Públicas del Municipio, arquitecta María Riestra.
Explicó que el área de Obras Públicas de la comuna dispone de distintos proyectos planteados a mediano y largo plazo, con miras a conseguir fuentes de financiamiento. Entre estas propuestas se encontraba la segunda etapa de los consultorios externos del Sistema Integrado de Salud Pública, con un presupuesto estimado en cien millones de pesos.
“Es una obra que para el presupuesto municipal era muy difícil de encarar por el costo, porque es una segunda etapa que no se podía segmentar más. Entonces, los montos hacían que para el Municipio se hiciera muy cuesta arriba. Por eso era tan importante poder conseguir este financiamiento, o que nos abran una puerta en Nación”, ratificó la funcionaria.
“Fue muy rápido”
Como informó este Diario, en noviembre del año pasado, el intendente Miguel Lunghi recibió en su despacho al jefe de Gabinete de Asesores de Jefatura de Gabinete del Gobierno nacional, el abogado tandilense Martín Yañez, a quien felicitó por su cargo y le planteó la necesidad de avanzar con la construcción de otros veinte consultorios en el edificio de Paz y Pellegrini.
En principio, el proyecto cuadró en el Plan de Infraestructura Sanitaria que depende del Ministerio de Obras Públicas de la Nación, por lo que el objetivo es rubricar el convenio para que las obras comiencen este año.
“Fue muy rápido”, señaló María Riestra en relación a las gestiones que facilitó Yañez ante la cartera que encabeza Gabriel Katopodis. “El contacto es Martín, que está trabajando espectacular con nosotros y poniéndose la camiseta como todo buen tandilense”, ponderó.
:format(webp):quality(40)/https://cdn.eleco.com.ar/media/2019/03/Riestra-22-03-19-2.jpg)
La arquitecta indicó que “la expectativa es que este año estamos arrancando las obras”, para lo cual avanzan en conjunto con el Sistema Integrado de Salud, la Secretaría de Obras Públicas y Nación. “Estamos tratando de ser muy cautos para no pecar de entusiastas, pero estamos trabajando todos para que sea una realidad”, dijo y deseó que pronto se pueda rubricar el convenio para que la obra se convierta en un hecho inamovible.
En tanto, manifestó que evalúan a contrarreloj los aspectos técnicos para poder concretar el proyecto en el marco del año del Bicentenario, teniendo en cuenta el plazo de ejecución previsto en 18 meses.
El proyecto
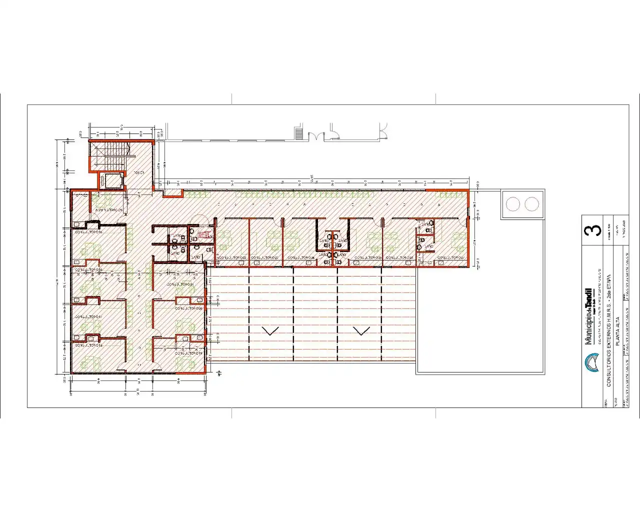
La segunda etapa de esta importante obra para Salud prevé la construcción de cuatro consultorios en planta baja, sector que detenta una función estructural para el sostenimiento de la segunda planta, donde se contemplan otros 16 consultorios, además de espacios comunes, escalera y ascensor para garantizar la accesibilidad.
“Nosotros respondemos, con las obras, a las necesidades edilicias que nos van planteando desde el Sistema de Salud que define cómo van a funcionar los servicios”, explicó María Riestra y confirmó que al mudar los consultorios al futuro edificio, se liberará un sector del Hospital Santamarina.
:format(webp):quality(40)/https://cdn.eleco.com.ar/media/2022/02/plano_segunda_etapa_consultorios_externos.jpeg)
En la memoria descriptiva del proyecto, Obras Públicas definió que “a través de este proyecto se pretende la terminación total del edificio cuya primera etapa se inauguró en 2015. En dicho edificio actualmente funcionan 7 consultorios médicos dependientes del Hospital Municipal Ramón Santamarina”.
El proyecto integral comprende la construcción de 20 consultorios más, totalizando unos 710 metros cuadrados cubiertos que se sumarán a los 410 metros cuadrados ya construidos.
“Este ambicioso proyecto pretende descentralizar del edificio del Hospital las acciones de prácticas ambulatorias y de atención rápida de los pacientes que asisten para consultas de diversa índole, así como las programadas por turnos pero no de urgencia”, reseñó y remarcó que “con la ejecución de este proyecto se logrará nuclear este tipo de pacientes en un único edificio, estratégicamente ubicado, moderno, funcional y con posibilidades de ampliación”.
Por último, resumió que una vez concluida esta obra, el nuevo edificio contará con 23 consultorios, una enfermería, office, sala de médicos, cómodas salas de espera, sanitarios para pacientes y médicos y un área de administración y atención al público, cubriendo una superficie techada de 1.120 metros cuadrados.